PRODÁNO 2023 Mezonetový apartmán 3+kk na Ramzové
Vážení klienti,
dovolte mi představit vám novinku na prodej – mezonetový apartmán 3+kk v Ramzové.
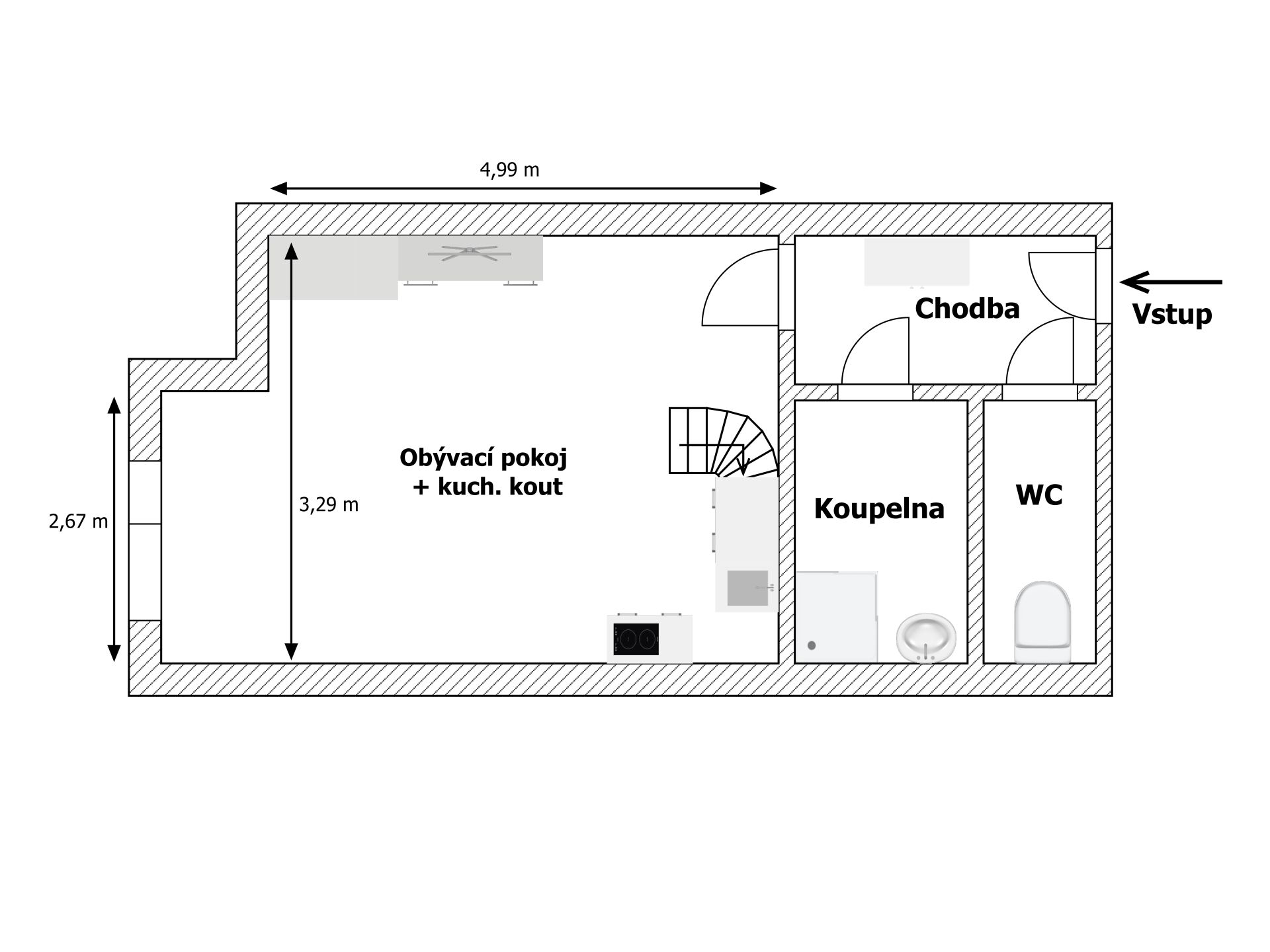
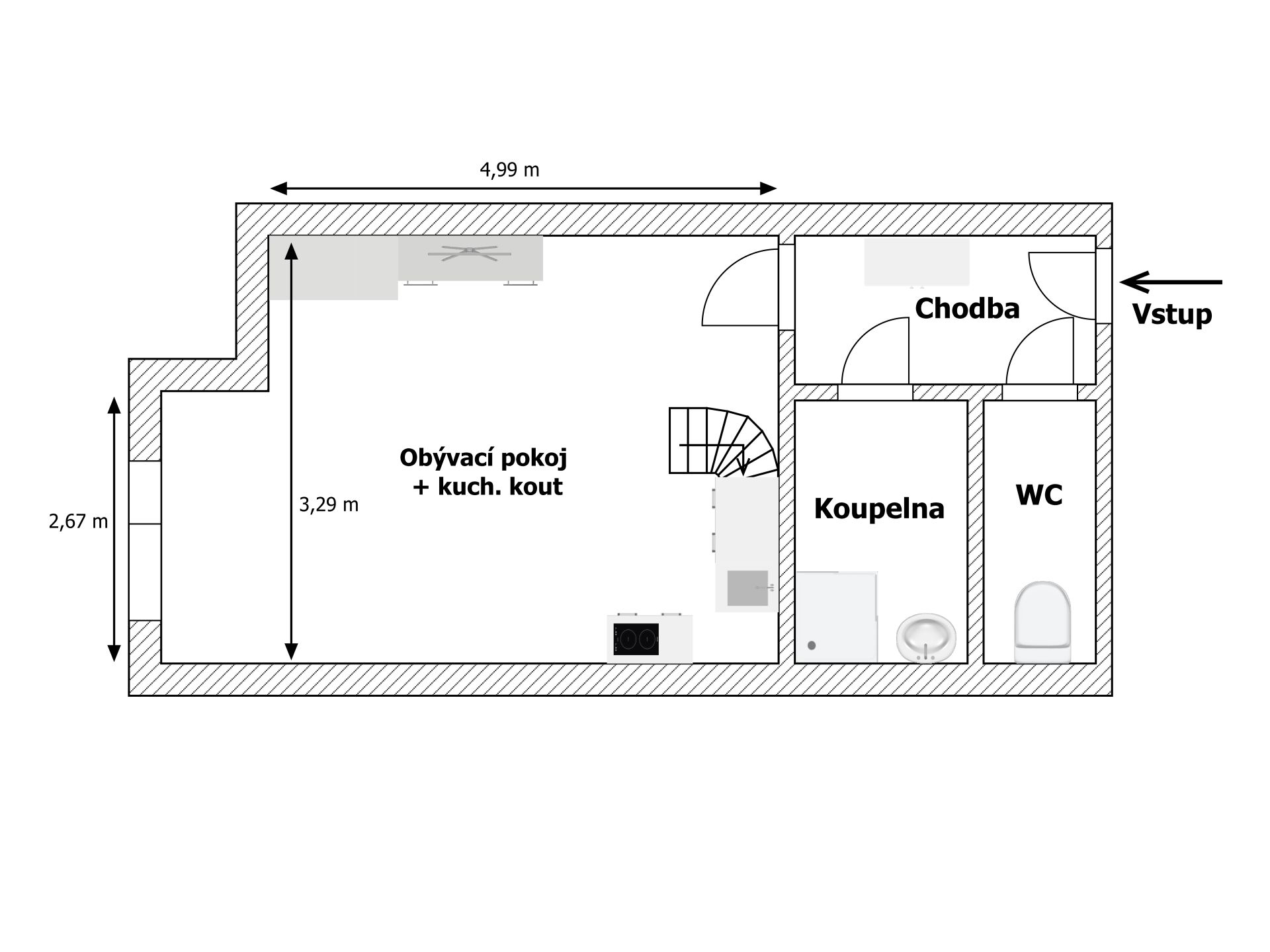
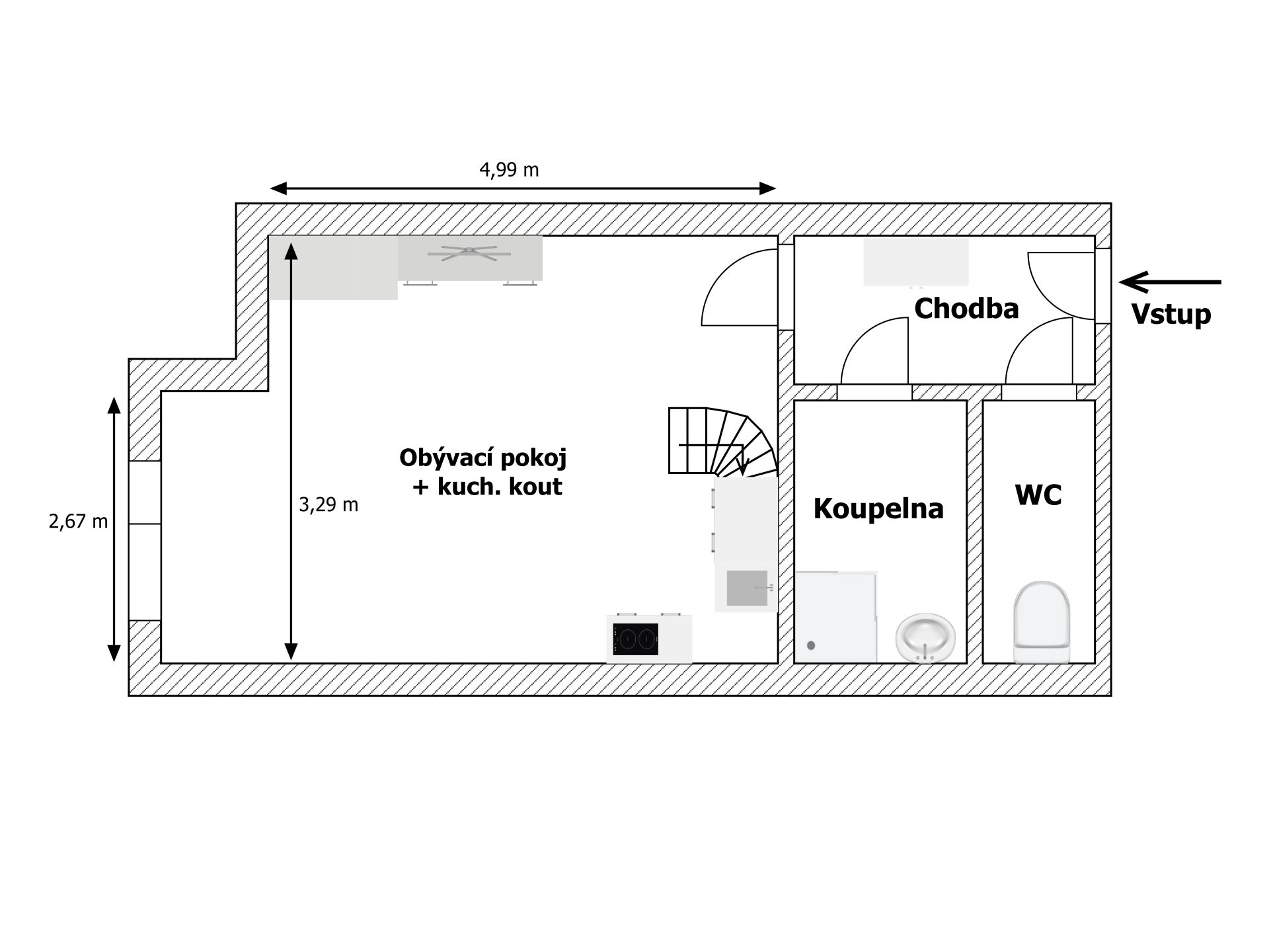
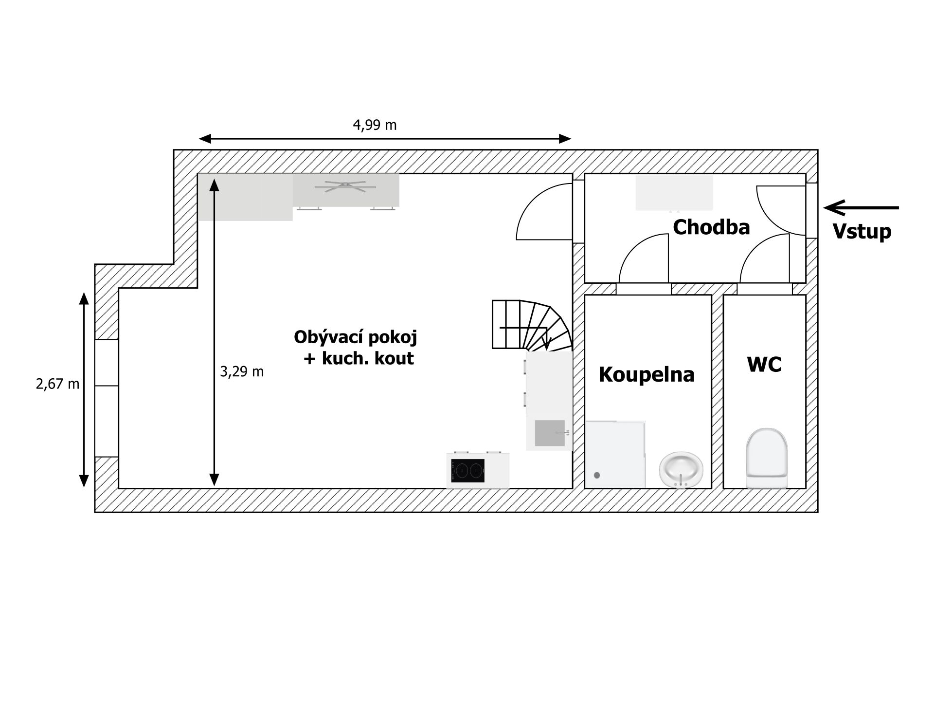
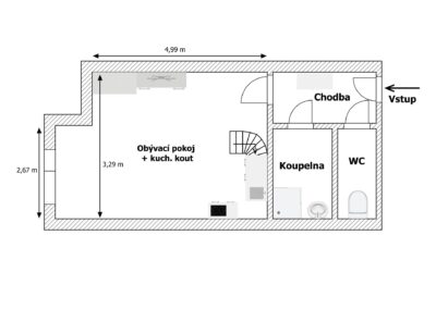
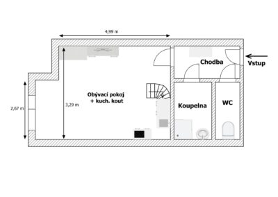
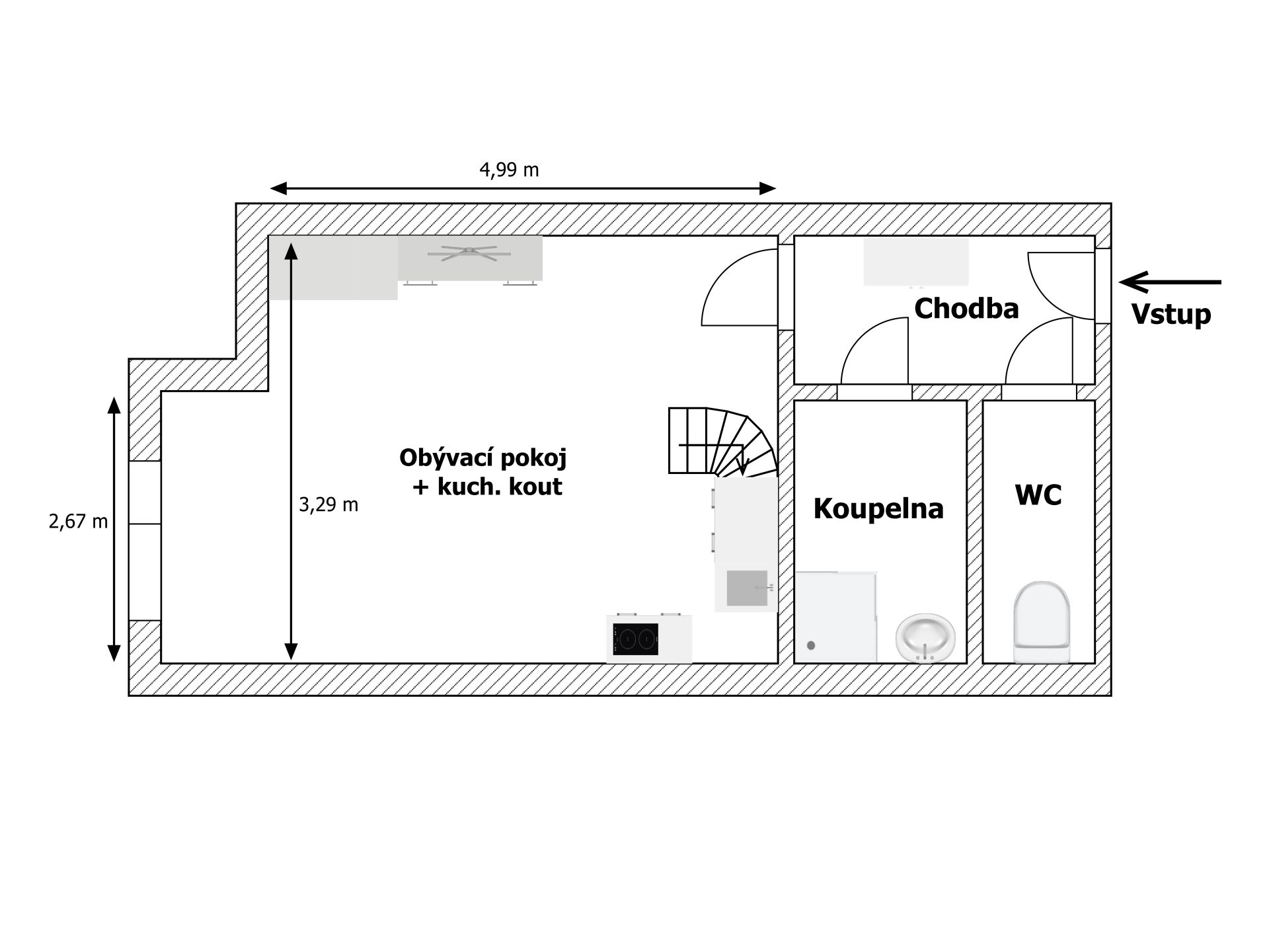
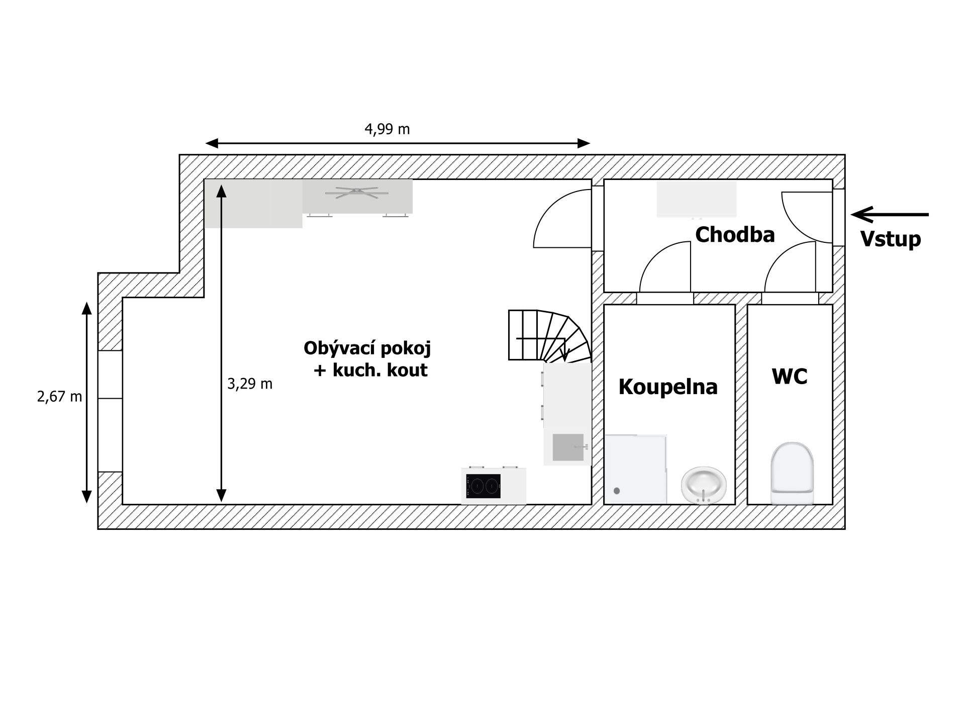
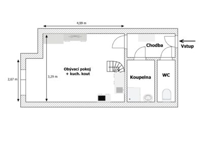
Apartmánový dům je jednou z dominant horského rekreačního střediska Ramzová v Hrubém Jeseníku. Apartmán má podlahovou plochu 64 m2 a nachází se ve 3. nadzemním podlaží zděného domu s výtahem.
Dispozice apartmánu tvoří pokoj s kuchyňským koutem, předsíň, koupelna a WC ve 3. podlaží a dva samostatné pokoje v podkroví. Apartmán se prodává vybaven.
K dispozici je ve dvou horních pokojích celkem 7 lůžek, nábytek na míru, dva psací stoly, šatní skříň a vestavěná skříň. Ve společenské místnosti s kuchyňským koutem je televize Samsung o úhlopříčce 44“. Do vybavení kuchyňského koutu a obývacího prostoru patří vestavná lednice s mrazákem, mikrovlnná trouba, varná dvou-plotýnková deska, elektrická trouba, varná konvice a toustovač. V předsíni je na míru vyrobená šatní skříň s úložnými prostory. Koupelna je vybavena sprchovým koutem, umyvadlem zabudovaným v koupelnové skříni a pračkou zn. Candy. Na samostatném WC je nástěnná skříň. Vytápění celého bytového domu je na elektřinu. V apartmánu je podlahové topení a elektrické přímotopy, v koupelně elektrický žebřík.
K apartmánu náleží komora ve stejném patře o výměře 4 m2. Své lyže, kola a jiné vybavení můžete ponechat také ve společných prostorách v přízemí domu, které jsou vidět na fotografiích. Vstup do celého apartmánového domu je možný kromě klíčů také na čip, nebo pomocí PIN kódu. Parkování pro vlastníky a rekreanty se nachází na soukromém parkovišti před apartmánovým domem.
Nový majitel bude mít možnost využívat apartmán výhradně pro své rodinné účely nebo ho také pronajímat. Firma nabízí všem vlastníkům apartmánů v domě A a domě B kompletní službu pronájmu, úklidu a marketingu, kterou využívá většina vlastníků již po mnoho let s oboustrannou spokojeností. Nejbližší restaurace se nachází 400 m od domu.
Apartmánový dům je spravován Společenstvím vlastníků jednotek (SVJ), ve kterém je 62 bytových a 8 nebytových jednotek. Fungování SVJ, hospodaření, hlášení závad a další podrobné informace jsou k dispozici všem členům SVJ na webové stránce, do které má přístup také správce objektu. Všichni členové SVJ jsou tedy v plné míře informováni o dění, opravách atd. a mohou se aktivně zapojit, pokud mají zájem, nebo v případě, že potřebují nahlásit závadu nebo požádat o radu.
Ski areál Ramzová je největším letním a zimním rekreačním střediskem na Moravě. Nachází se v nadmořské výšce 782 až 1351 metrů v severozápadním okraji Hrubého Jeseníku. Nabízí 11,5 km kvalitních sjezdovek, 3 modré, 3 červené a 1 černou sjezdovku a 27 km běžeckých tratí. Přímo u apartmánového domu se nachází rodinný lyžařský areál Pod klínem se 2 lyžařskými vleky o délce 500 m a pro začátečníky 120 m. Na protější straně údolí, ve vzdálenosti cca 800 m od apartmánového domu, je v provozu čtyřsedačková lanová dráha z Ramzové na Čerňavu, dvousedačková lanová dráha z Čerňavy na Šerák, lyžařský vlek a dvousedačková lanová dráha pro modrou sjezdovku o délce 400 m. K dispozici jsou lyžařské školy a půjčovny, jídelna, restaurace a kavárna.
Cykloturisty jistě potěší cyklotrasa vedoucí z Ramzové k Obřím skálám, která nabízí jedny z nejkrásnějších výhledů v Jeseníkách. Ramzovským sedlem prochází dálková cyklotrasa Moravská stezka (KČT 53).
V obci Černá Voda se nachází známé Rychlebské stezky (viz http://www.rychlebskestezky.cz/cs/). Jedná se o ucelenou síť stezek (trailů) speciálně upravených pro zábavnou jízdu na horském kole v těsném kontaktu s přírodou. Na Rychlebských stezkách najdete jak staré kamenné stezky, tak moderní flow traily.
Další oblíbenou destinací jsou méně náročné 8 km dlouhé Lipovské stezky (viz http://www.rychlebskestezky.cz/cs/lipovske-stezky). Jedná se o příměstské trailcentrum, které nabízí možnost půldenního ježdění pro celou rodinu u obce Lipová-lázně.
K nejoblíbenějším trasám v této oblasti patří turistický chodník nahoru na Šerák, kde je možné cestovat jak pěšky, tak i sedačkovou lanovkou. Další oblíbenou trasou je výlet k turistické chatě Paprsek, která je proslavena domácími borůvkovými knedlíky.
Součástí střediska je také půjčovna lyží a snowboardů, koloběžek a kol. Za zmínku jistě stojí návštěva Červenohorského sedla, Vřesové studánky, Pradědu, PVE Dlouhých strání, Velkých Losin (aquapark) a spoustu dalších míst, které tuto oblast nabízí.
CENA NEMOVISTOTI – 5.150.000,- Kč
Jednotka vhodná k financování hypotečním úvěrem.



